Commercial fencing
Protect your property with strength, style, and reliability—choose Royal Aluminum and Steel for your commercial fencing needs.
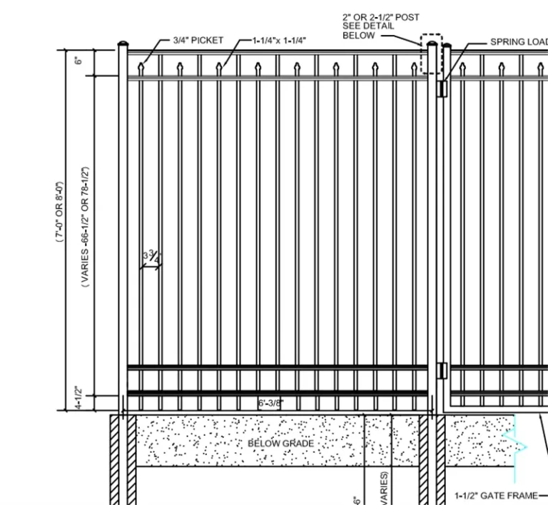
Our heavy-duty aluminum fencing solutions are designed to meet the demands of businesses, schools, government facilities, and other commercial sites. Whether you need perimeter security, access control, or a polished look for your grounds, our commercial-grade fences deliver long-lasting performance with minimal maintenance, all while enhancing the professional appearance of your property.






