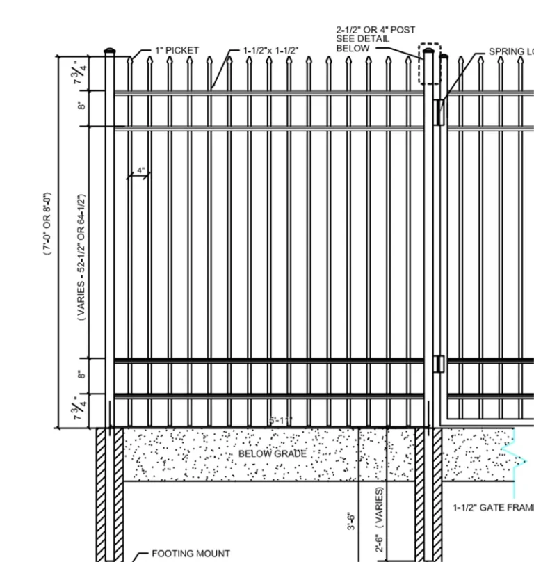
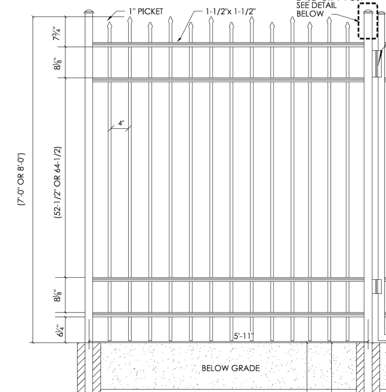
Industrial Fencing
When security and durability are non-negotiable, Royal Aluminum and Steel delivers industrial fencing built to perform.
Engineered for high-traffic, high-security environments, our industrial-grade aluminum fencing is ideal for warehouses, manufacturing facilities, utility sites, and more. With customizable options and rugged construction, our fences provide long-term protection, superior strength, and a clean, professional look—without the rust or upkeep of traditional steel.





